Hormigón y madera son los materiales que definen esta casa, proyectada por el estudio japonés Tomoaki Uno Architects. Una casa minimalista que se aleja del concepto de espacios blancos bañados en luz, pero que en su apuesta por el hormigón visto consigue crear espacios extremadamente sobrios, bastante duros y no exentos de un delicado efectismo teatral.
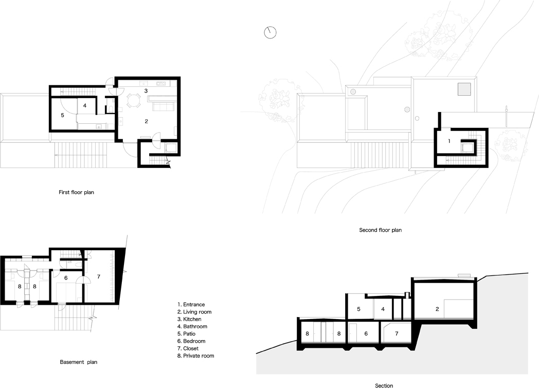
El terreno sobre el que se asienta, una parcela con una fuerte pendiente, ha llevado a desarrollar la casa en tres plantas marcadas, externa e internamente, por el color gris del material de construcción. El aspecto industrial que éste proporciona se ve suavizado y contrastado por la utilización de madera en el mobiliario de cocina, el mueble del cuarto de baño, algunas librerías, puertas y la parte del suelo revestida con parquet.
La entrada se encuentra en el nivel superior y la transición entre planta y planta se realiza a través estrechos corredores con escaleras con los que se consigue un potente efecto teatral, realzado durante el día por los puntos de luz natural que provienen de claraboyas redondas abiertas en el techo.


























